東区 松香台の店舗事務所
東区 松香台の店舗事務所
- 賃料
- 66万円
- 店舗(建全部)
- 敷金
- 10ヶ月
- 礼金
- 1ヶ月
|
|
|
|
| 所在地 | 福岡県福岡市東区松香台1丁目 松香台1丁目戸建店舗 |
|---|---|
| 交通 | JR鹿児島本線九産大前駅 徒歩14分 |
| 築年月 | 1988/11 | 新築/中古 | |
|---|---|---|---|
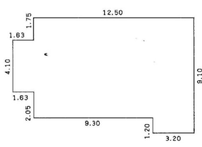
| 面積 | 109.27m² | 計測方式 | |
| バルコニー | m² | 向き | |
| 建物階数 | 地上1階 | 部屋階数 | 階 |
| 部屋/区画番号 | 1階 | 総戸/区画数 | |
| 建物構造 | 軽量鉄骨 | ||
| 間取内容 | |
||
| 駐車場 | 空有 約12台あり | 取引態様 | |
| 引渡/入居時期 | 相談 | 現況 | |
| 周辺環境 | |||
| 設備・条件 | 「飲食店可」「重飲食可」「スケルトン渡し」 | ||
| 物件番号 | R6-ST-127 | 掲載期限日 | 2024//9/2 |
※物件掲載内容と現況に相違がある場合は現況を優先と致します。











